一、大氣(qi)負氧離子監(jian)測系統產品簡介(jie)
大氣(qi)(qi)(qi)負(fu)氧(yang)離(li)子監(jian)(jian)測系(xi)(xi)統(tong)又稱負(fu)氧(yang)離(li)子監(jian)(jian)測站、大氣(qi)(qi)(qi)負(fu)氧(yang)離(li)子監(jian)(jian)測站,大氣(qi)(qi)(qi)負(fu)氧(yang)離(li)子監(jian)(jian)測系(xi)(xi)統(tong)是(shi)一款用(yong)(yong)于氣(qi)(qi)(qi)象天(tian)然氧(yang)吧、林業森林康養(yang)、優美文旅公園、智慧景(jing)區、生態環保、等領域(yu)的集負(fu)氧(yang)離(li)子、PM2.5、PM10、溫(wen)度、濕度、風速、風向、等實(shi)時(shi)在線監(jian)(jian)測與(yu)智能LED發布系(xi)(xi)統(tong)。空(kong)氣(qi)(qi)(qi)負(fu)氧(yang)離(li)子監(jian)(jian)測站可(ke)(ke)全天(tian)候監(jian)(jian)測空(kong)氣(qi)(qi)(qi)中(zhong)負(fu)氧(yang)離(li)子濃度,同(tong)時(shi)可(ke)(ke)根(gen)據(ju)用(yong)(yong)戶需求擴展(zhan)監(jian)(jian)測項目,模塊化結構(gou)設(she)計,傳(chuan)感器都(dou)可(ke)(ke)以單(dan)獨替換,配(pei)備專業安裝支架,現場可(ke)(ke)通過(guo)LED屏幕直接(jie)讀取(qu)數據(ju),亦(yi)可(ke)(ke)遠程云平(ping)臺/WEB/微信公眾(zhong)號實(shi)時(shi)查看數據(ju),后期運營維護方(fang)便。
二、大氣負氧離子監測系統應用范圍
旅游景區、生態莊園(yuan)(yuan)、濕(shi)地公(gong)園(yuan)(yuan)、瀑布公(gong)園(yuan)(yuan)、森(sen)林(lin)公(gong)園(yuan)(yuan)、自然保護區、售樓處、學校
三、大氣負氧離子監測系統技術參數
1、風速:測量原理超聲波,0~60m/s(±0.1m/s)分辨率(lv)0.01m/s;(發(fa)明專(zhuan)利,專(zhuan)利號(hao)ZL 2021 1 0237536.5)
2、風向:測量原(yuan)理超(chao)聲波(bo),0~360°(±2°)分辨率1°;(發明專利,專利號ZL 2021 1 0237536.5)
3、空氣(qi)溫度:測量原理二極(ji)管結電(dian)壓法,-40-60℃(±0.3℃)分辨率0.01℃;(北京市氣(qi)象局校準證書)
4、空氣(qi)濕(shi)度:測量原理電容式,0-100%RH(±0.3%RH)分辨(bian)率0.1%RH;(北京市氣(qi)象局(ju)校準證(zheng)書)
5、大氣(qi)壓力:測(ce)量原理壓阻式(shi),300-1100hpa(±0.25%),分(fen)辨(bian)率0.1hpa;(北京市氣(qi)象局校(xiao)準證書)
6、PM2.5:測量原理光散射(she),0-1000ug/m3(±10%)分辨率(lv)1ug/m3
7、PM10:測(ce)量原理光散射,0-1000ug/m3(±10%)分辨(bian)率1ug/m3
8、噪聲:測(ce)量原理(li)電容(rong)式,30-120dB(±1.5dB)分辨率0.1db
9、負氧離子:測量原(yuan)理(li)圓筒式電極吸入式,0-10萬個/cm3(±10%)分辨率1個/cm3
10、氧(yang)含量(liang):測(ce)量(liang)原理電化(hua)學,0~25%Vol(±3%FS)分辨(bian)率0.1%
11、數據(ju)存儲(chu):可存儲(chu)一年的原始監測數據(ju);
12、數據傳輸:GPRS/4G/光纖
13、功(gong)耗:800w
14、供(gong)電(dian)方式(shi):220V市電(dian)、太陽能(選配)
15、工作(zuo)環境:溫度-40℃-60℃,濕度0%-100%
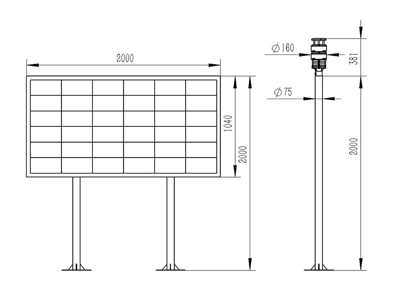
16、屏幕:2m*1米,由36塊(kuai)P10單(dan)紅單(dan)元(yuan)板(ban)拼接而(er)成,單(dan)元(yuan)板(ban)尺(chi)寸(cun)32cm*16cm
17、立(li)桿:碳鋼雙立(li)柱(zhu),每根立(li)柱(zhu)由2根1.5米立(li)桿法蘭盤對接(jie)而成,可耐受15級強臺風
18、生產(chan)企業(ye)具有ISO質量(liang)管(guan)理體系、環境管(guan)理體系和(he)職業(ye)健康(kang)管(guan)理體系認證
19、生產企業具(ju)有計(ji)算機軟件注冊證(zheng)書
20、生(sheng)產企業(ye)為(wei)3A級信用企業(ye)
四、大氣負氧離子監測系統產品特點
1、集(ji)成(cheng)度(du)高,方案(an)靈(ling)活(huo):系統可(ke)集(ji)成(cheng)負(fu)氧離(li)子、空氣溫度(du)、空氣濕度(du)、PM2.5、PM10、大氣壓力、氧含量、噪聲、風(feng)速、風(feng)向
2、系統穩定:已合作上千家公(gong)園(yuan)景區,后臺運行穩定,免維(wei)護,故障率低
3、多種傳輸(shu):可(ke)根據現場網絡情況定制(zhi)傳輸(shu)方式,2G/4G/光纖(xian)
4、支持擴(kuo)展:支持傳感器擴(kuo)展,485接口、modbus協議(yi)傳感器都可以直(zhi)接使用
5、顯示方案(an)多(duo)(duo)樣:可(ke)根據現場(chang)需求,選用點(dian)(dian)對(dui)(dui)點(dian)(dian)、點(dian)(dian)對(dui)(dui)多(duo)(duo)、多(duo)(duo)對(dui)(dui)點(dian)(dian)的(de)LED屏幕數據顯示方案(an)
五、大氣負氧離子監測系統產品結構圖

六(liu)、大氣負氧離子監測系統產品尺寸(cun)圖(tu)

七、大(da)氣負氧離(li)子監(jian)測系(xi)統(tong)云(yun)平臺(tai)介紹
1、CS架構軟件平臺,支持手(shou)機、PC瀏(liu)覽器直(zhi)接觀(guan)測、無需(xu)額(e)外安裝軟件。
2、支持多帳號、多設備(bei)登錄
3、支持實時(shi)數據(ju)展示與(yu)歷(li)史數據(ju)展示儀表板(ban)
4、云服務(wu)器、云數據存儲,穩定可靠,易(yi)于擴展,負載均(jun)衡。
5、支(zhi)持短信報警(jing)及閾值設置(zhi)
6、支(zhi)持地圖顯示、查看設備信息。
7、支(zhi)持(chi)數據曲線分析(xi)
8、支(zhi)持數據導出(chu)表(biao)格形式
9、支持數據(ju)轉(zhuan)發,HJ-212協(xie)議(yi),TCP轉(zhuan)發,http協(xie)議(yi)等。
10、支持數據后(hou)處理功(gong)能
11、支持外(wai)置運行javascript腳本